Dodaj produkty podając kody
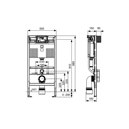
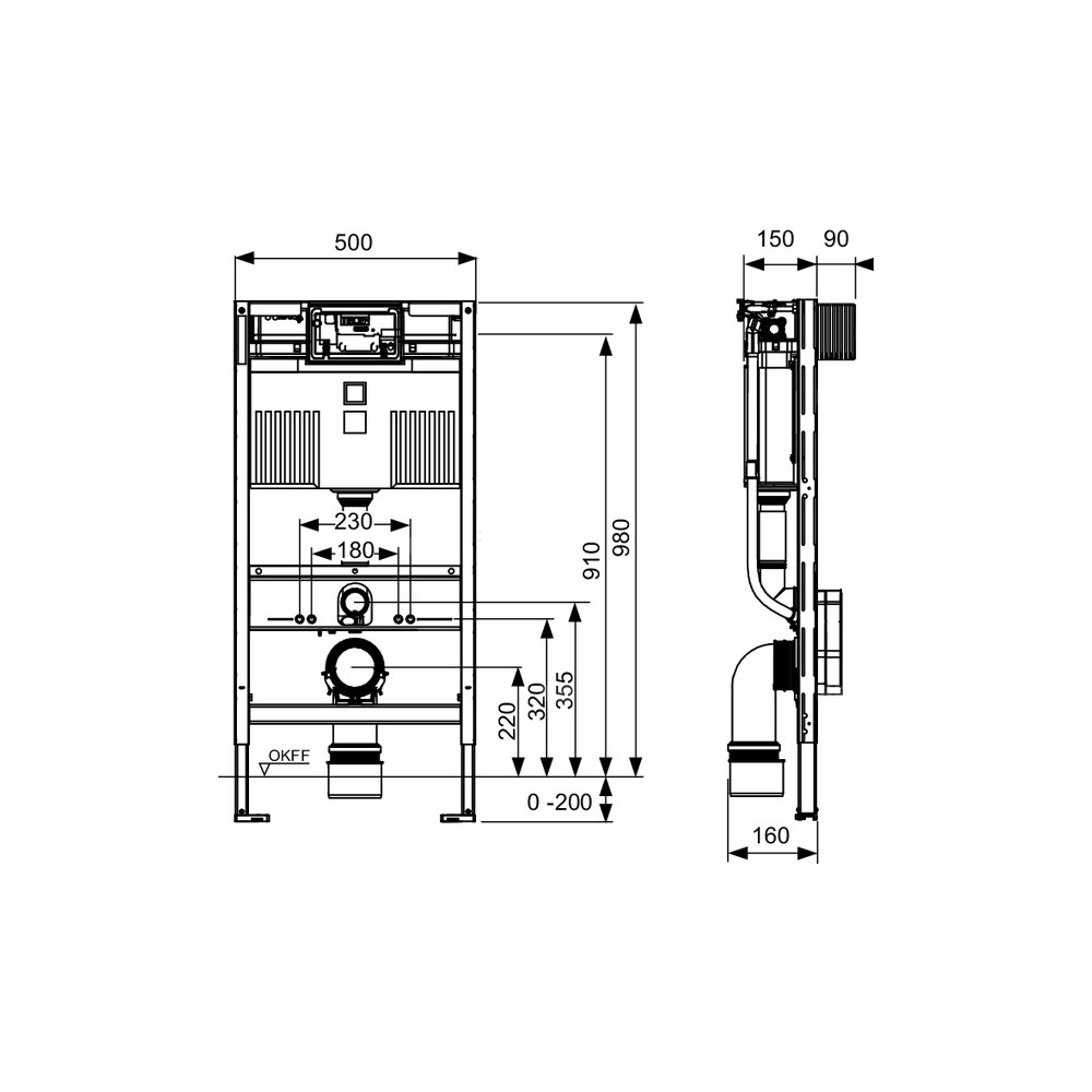
Moduł WC z instalacją przycisku spłukującego „easy fit” i rurką instalacyjną do podłączenia elektronicznych toalet myjących. Do montażu na konstrukcjach TECEprofil przedściennych lub przed ścianą pełną.
Spłuczka Uni uruchamiana z przodu lub od góry:
- bezpieczny zbiornik z tworzywa odpornego na uderzanie, przetestowany zgodnie z normą EN 14055
- kompletnie zmontowana i zaplombowana spłuczka
- przyłącze spłuczki z gwintem zewnętrznym R 1/2", kompatybilne z adapterami szybkiego montażu
- pojemność zbiornika 10 litrów; standardowe ustawienie ilości spłukiwanej wody 6 litrów, opcjonalnie możliwość ustawienia ilości spłukiwanej wody 4,5/7,5/9 litrów;przy systemie spłukiwania dwoma ilościami wody 3 litry; pozostała ilość wody do natychmiastowego spłukiwania czyszczącego.
- izolacja przeciw skraplaniu wody
- do przycisków spłukujących TECE i armatury WC
- spłukiwanie jedną lub dwoma ilościami wody
- instalacja przycisków spłukujących „easy fit”
- tunel montażowy do otworu rewizyjnego może zostać skrócony bez użycia narzędzi
- cichy zawór napełniający, grupa akustyczna 1 zgodnie z normą DIN 4109
- regulacja ciśnienia wody spłukującej bez konieczności demontażu zaworu spustowego
Rama stelaża:
- samonośna, malowana proszkowo
- dwie szpilki mocujące i nakrętki M 12
- mocowanie górne stelaża
- kolano odpływowe do WC DN 90 z adapterem przyłączeniowym DN 90/100, wykonane z PP
- adapter przyłączeniowy odpowiedni także do montażu poziomego
- kpl. kroćców przyłączeniowych wraz z zatyczkami, do montażu ceramiki
- puszka przyłączeniowa z szablonem montażowym do wykonania uniwersalnego przyłącza elektrycznego i wodnego dla toalety myjącej (sprawdź pozycję przyłącza zimnej wody)
Należy zamawiać oddzielnie:
- przycisk spłukujący do WC (patrz przyciski spłukujące)
- płytkę maskującą z koszem na kostki czyszczące (opcja, tylko do spłuczek uruchamianych z przodu)
- zestaw przyłączeniowy do instalacji do uniwersalnych stelaży do toalet myjących 980 mm
Uwaga:
W przypadku stosowania ceramiki WC o zmniejszonej powierzchni stykowej (= odstęp między bolcem mocującym a dolną krawędzią powierzchni stykowej nie większy niż 18 cm) - np.: V & B Memento, Subway 2.0 – konieczny jest montaż stalowych podpór nr kat. 9041029 w dolnej części zabudowy.
Uwaga:
jeśli przycisk spłukujący jest zamontowany z przodu spłuczki o małej wysokości montażowej i jeśli zastosowano ceramikę kompaktową, pokrywa do WC może czasem sama opadać. W przypadku zastosowania ceramiki kompaktowej, należy montować wyłącznie przycisk spłukujący uruchamiany od góry.









