Dodaj produkty podając kody
Dodaj plik CSV
Wpisz kody produktów, które chcesz zbiorczo dodać do koszyka (po przecinku, ze spacją lub od nowej linijki).
Powtórzenie wielokrotnie kodu, doda ten towar tyle razy ile razy występuje.
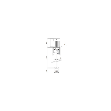
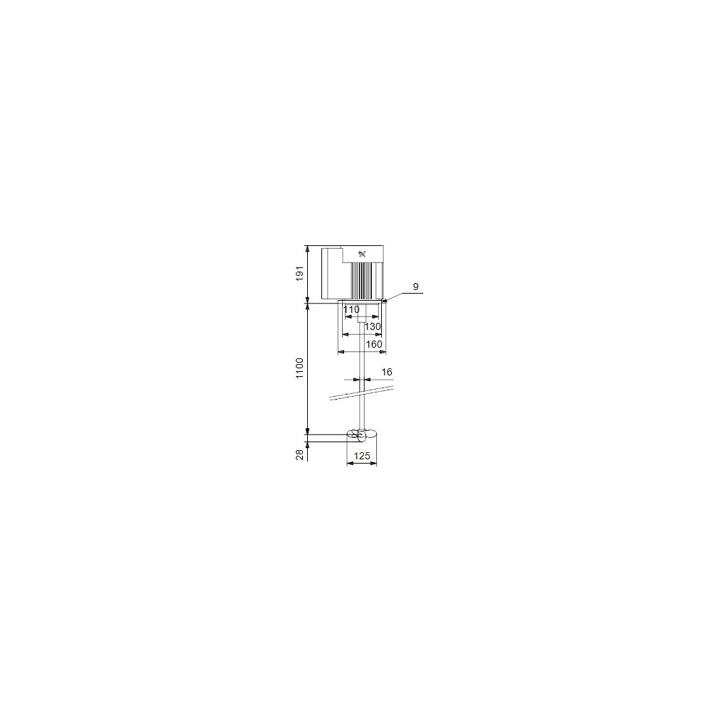
| Długość wału | 1100 mm |
| Materiał | SS |
| Kołnierz uszczelniający | NO |
| Nominalna moc silnika - P2 | 0.25 kW |
| Częstotliwość podstawowa | 50 / 60 Hz |
| Napięcie nominalne | 3 x 220-240/380-415 V |
| Rodzaj ochrony (IEC 34-5) | IP55 |
| Objętość zbiornika | 500 l |
Marka
Kod IK
Symbol
2198165435
Rodzaj towaru
Akcesoria do pomp
EAN
5711490734157
Kod producenta
98165435
Rodzaj akcesorium
Mieszadło elektryczne
Strona www producenta
www.grundfos.pl
Zapytaj o produkt
Napisz swoją opinię



