Dodaj produkty podając kody
Dodaj plik CSV
Wpisz kody produktów, które chcesz zbiorczo dodać do koszyka (po przecinku, ze spacją lub od nowej linijki).
Powtórzenie wielokrotnie kodu, doda ten towar tyle razy ile razy występuje.
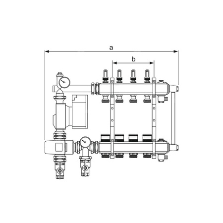
Rozdzielacz do ogrzewania podłogowego TECE floor 9-obieg. mosiądz 1'' x eurocono 3/4'' + przepływomierz + pompa
TECEfloor rozdzielacz ogrzewania podłogowego zintegrowany z termostatycznym zaworem trójdrogowym i mieszaczem pompowym (pompa elektroniczna)
Urządzenie przeznaczone jest do nowoczesnych ogrzewań podłogowych z niskotemperaturowym źródłem ciepła. Temperatura wody dochodząca z kotłowni powinna być o 5 °C wyższa niż nastawiona na trójdrogowym zaworze termostatycznym.
W skład zestawu wchodzi:
- rozdzielacz mosiężny 1" z przepływomierzami magnetycznymi do regulacji przepływu (zasilanie pętli grzewczych belka górna) w zakresie 0,5-3,5 l/min oraz wbudowanymi w belkę wkładkami zaworów termostatycznych do montażu siłowników termoelektrycznych od 3-10 sekcji (belka dolna)
- bypass mieszacza - nie zmieniać nastaw fabrycznych
- 2 x zawory spustowo-napełniające 3/4"
- 2 x ręczne zawory odpowietrzające
- pompa mieszająca WILO PARA
- zintegrowany zawór termostatyczny o kv = 2,3
- 2 x zawory kulowe odcinające Rp 3/4"
- zabezpieczenie termiczne wyłączające pompę w przypadku, gdy temperatura wody po zmieszaniu przekroczy 55-60°C
- 2 x termometry tarczowe 0-100 °C
- kluczyk serwisowy
Marka
Kod IK
Symbol
J177332519
Seria
Rodzaj towaru
Rozdzielacze
EAN
4027255050990
Kod producenta
77332519
Z pompą
1
Liczba obiegów ogrzewania podłogowego
9
Materiał
Mosiądz
Ze wskaźnikiem przepływu
1
Rozmiar przyłącza źródła ciepła
1''
Rodzaj przyłącza obiegu
Eurocono
Rozmiar przyłącza obiegu
3/4''
Strona www producenta
www.tece.pl
Zapytaj o produkt
Napisz swoją opinię






