Dodaj produkty podając kody
KESSEL Korpus Practicus, typ uszczelnienia:, króciec boczny, wielkość nominalna (DN) 50, syfonem w zestawie, uszczelnienie nasadzie przez załączona mata uszczelniająca do przyklejenia (zmu) wg DIN 18534
- Higiena: trwały i higieniczny materiał, całkowicie odporny na korozję
- absolutnie odporny na korozję i trwały materiał
Korpus Practicus Docisk. kołn. uszcz., DN50, odpł. bocz.
Wpust podłogowy Practicus z wyjmowanym syfonem, uszczelką wargową i pokrywą ochronną na czas fazy budowlanej. Ochrona akustyczna: zgodnie z pomiarami Instytutu Frauenhofera w Stuttgarcie: Wpust podłogowy/stropowy Practicus - wg DIN 4109 >= 18 dB (A) - wg VDI 4100 SST III >= 15 dB (A) Wariant: z krawędzią przyłączeniową i kołnierzem z zamknięciem zatrzaskowym Rodzaj uszczelnienia: uszczelnienie płynnymi masami hydroizolacyjnymi przez kołnierz z zamknięciem zatrzaskowym 280x280 mm
Wersja
- System: 125
- Uszczelnienie na nasadzie: załączona mata uszczelniająca do przyklejenia (zmu) wg DIN 18534
- Uszczelnienie na korpusie: Dociskowy kołnierz uszczelniający (odpowiedni do tworzenia uszczelnień wodoszczelnych)
- Wys. zamknięcia wodnego: 50 mm
Cechy ogólne
- Wielkość nominalna (DN): 50
- Średnica zewnętrzna (DA): 50 mm
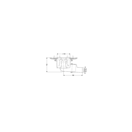
Wymiary
- Ciężar netto: 1,85 kg
- Ciężar brutto: 2,14 kg
- Średnica: 273 mm
- Wysokość: 147 mm
- Wymiar opakowania: dł.: 280 mm
- Wymiar opakowania: szer.: 280 mm
- Wymiar opakowania: wys.: 260 mm
Zbiornik/korpus
- Liczba odpływów: 1
- Materiał korpusu wpustu: PP
- Wariant króćca: boczny
Cechy pokrywy
- Syfon: w zestawie






