Dodaj produkty podając kody
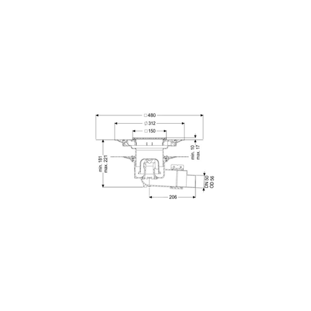
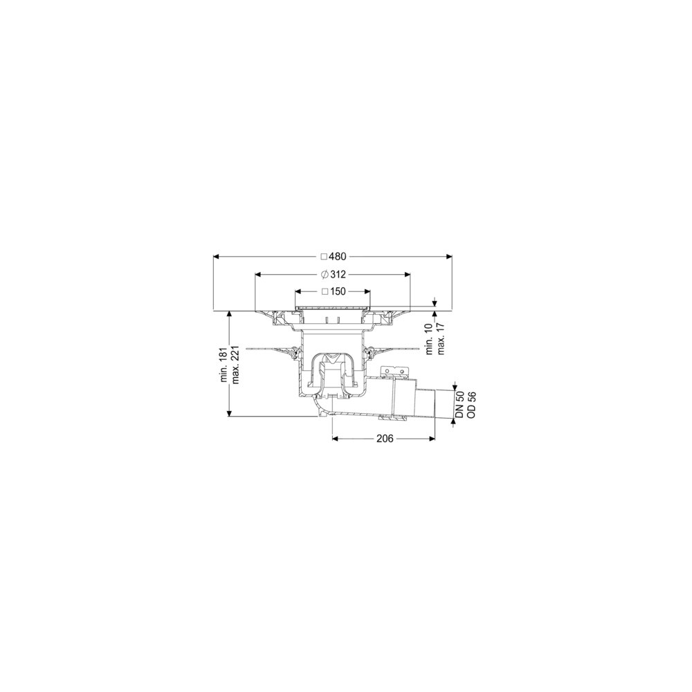
KESSEL Wpust obiektowy Ecoguss kołnier., wielkość nominalna (DN) 50, króciec boczny, odwodnienie przez odpływ punktowy, syfonem w zestawie, maks. wys. posadzki 17 mm, typ pokrywy Kratka szczelinowa, regulowany w trzech wymiarach
- Nowoczesne tworzywo kompozytowe Ecoguss
- Najwyższe standardy ochrony przeciwpożarowej
- Naukowo potwierdzona izolacja akustyczna
Wpust obiektowy Ecoguss kołnier. DN 50, bocz., Variofix, Kratka szczelin.
Wpust podłogowy/stropowy Ecoguss z tworzywa sztucznego służy do odwodnienia punktowego i jest wyposażony w kołnierz do przyklejenia hydroizolacji oraz wyjmowany syfon, uszczelkę wargową i pokrywę ochronną na czas fazy budowlanej. Przystosowane do recyklingu tworzywo kompozytowe Ecoguss spełnia najwyższe wymagania akustyczne, jest odporne na agresywne czynniki, temperaturę i korozję. Można je na krótkotrwale poddać działaniu płomieni o temperaturze od 100°C do 400°C. Kołnierz o szerokości 50 mm do przyklejenia hydroizolacji przeznaczony jest do uszczelnień zespolonych, zgodnie z normą DIN 18534, dla wszystkich klas obciążenia wodą. Kołnierz luźny służy do zaciskania membran uszczelniających z tworzyw sztucznych i elastomerów oraz hydroizolacji bitumicznych na zimno, dlatego nadaje się tylko do stosowania w barierach przeciwwilgociowych. Króciec odpływowy jest przystosowany do podłączenia do rur SML. Wyrównanie potencjałów nie jest konieczne.
Wersja
- System: 125
- Uszczelnienie na nasadzie: załączona mata uszczelniająca do przyklejenia (zmu) wg DIN 18534
- Uszczelnienie na korpusie: Kołnierz do uszczelnień klejonych (odpowiedni do barier przeciwwilgociowych)
- Klasa wodoszczelności wg DIN 18534-1: W0-I
- Wys. zamknięcia wodnego: 50 mm
Cechy ogólne
- Norma: EN 1253-1
- Wielkość nominalna (DN): 50
- Średnica zewnętrzna (DA): 58 mm
Wymiary
- Ciężar netto: 3,93 kg
- Ciężar brutto: 4,92 kg
- Średnica: 348 mm
- Rodzaj regulacji wysokości: Nasada teleskopowa
- Długość: 348 mm
- Szerokość: 348 mm
- Wymiar opakowania: dł.: 586 mm
- Wymiar opakowania: szer.: 386 mm
- Wymiar opakowania: wys.: 400 mm
Zbiornik/korpus
- Liczba odpływów: 1
- Materiał korpusu wpustu: Ecoguss
- Wariant króćca: boczny
Cechy pokrywy
- Typ pokrywy: Kratka szczelinowa
- Materiał pokrywy: Stal nierdzewna 14301
- Kolor pokrywy: srebrny
- Pokrywy, Szerokość: 138 mm
- Pokrywy, Długość: 138 mm
- Min. wysokość powłoki: 10 mm
- Materiał ramy: Stal nierdzewna 14301
- Blokada: przykręcony
- Klasa obciążenia: K 3 (EN 1253-1)
- Szerokość ramy: 150 mm
- Długość ramy: 150 mm
- Maks. grubość podłogi: 17 mm
- Nasada: regulowany w trzech wymiarach
- Materiał nasady: ABS
- Syfon: w zestawie






