Dodaj produkty podając kody
KESSEL Wpust obiek.Practicus doc.koł.usz, dł. pokrywy 138 mm, króciec pionowy, wielkość nominalna (DN) 100, syfonem w zestawie, typ pokrywy Kratka szczelinowa, kratka design Kessel, uszczelnienie nasadzie przez załączona mata uszczelniająca do przyklejenia (zmu) wg DIN 18534
- Higiena: trwały i higieniczny materiał, całkowicie odporny na korozję
- Izolacja akustyczna: doskonała ochrona przeciwdźwiękowa potwierdzona przez Instytut Frauenhofera
- Ochrona przeciwpożarowa: możliwość połączenia z wkładem przeciwpożarowym Fire-Kit
Wpust obiek.Practicus doc.koł.usz DN100,pion., usz. płyn. mas., kr. szcz.
Wpust podłogowy/stropowy Practicus z tworzywa sztucznego służy do odwodnienia punktowego i jest wyposażony w dociskowy kołnierz uszczelniający oraz wyjmowany syfon, uszczelkę wargową i pokrywę ochronną na czas fazy budowlanej. Z nasadą z ABS z teleskopową regulacją wysokości. Wpust spełnia szczególne wymagania w zakresie izolacyjności akustycznej zgodnie z pomiarami Instytutu Frauenhofera w Stuttgarcie. Dociskowy kołnierz uszczelniający z bolcami i śrubami ze stali nierdzewnej służy do dociskania lub zgrzewania taśm bitumicznych i polimerowo-bitumicznych oraz taśm uszczelniających z tworzywa sztucznego i elastomerów. Do uszczelnień wodoszczelnych mogą być stosowane tylko sprawdzone przez producenta membrany hydroizolacyjne.
Wersja
- System: 125
- Uszczelnienie na nasadzie: załączona mata uszczelniająca do przyklejenia (zmu) wg DIN 18534
- Uszczelnienie na korpusie: Dociskowy kołnierz uszczelniający (odpowiedni do tworzenia uszczelnień wodoszczelnych)
- Wys. zamknięcia wodnego: 50 mm
- Przepustowość (l/s) z nadpiętrzeniem 20 mm: 2,1
Cechy ogólne
- Norma: EN 1253-1
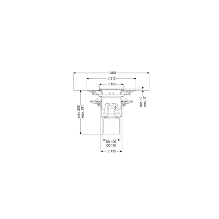
- Wielkość nominalna (DN): 100
- Średnica zewnętrzna (DA): 110 mm
- Aprobata: Z-19.53-2414,Z-19.17-1719
Wymiary
- Możliwość regulacji wysokości: 10 - 18 mm
- Ciężar netto: 4,17 kg
- Ciężar brutto: 5,16 kg
- Rodzaj regulacji wysokości: Nasada teleskopowa
- Długość: 273 mm
- Szerokość: 273 mm
- Wymiar opakowania: dł.: 586 mm
- Wymiar opakowania: szer.: 386 mm
- Wymiar opakowania: wys.: 400 mm
Zbiornik/korpus
- Liczba odpływów: 1
- Przyłącze króćca dopływowego/odpływowego: Króciec wylotowy nadaje się do połączenia z rurami SML.
- Materiał korpusu wpustu: PP
- Wariant króćca: pionowy
Cechy pokrywy
- Typ pokrywy: Kratka szczelinowa
- Materiał pokrywy: Stal nierdzewna 14301
- Kolor pokrywy: srebrny
- Pokrywy, Szerokość: 138 mm
- Pokrywy, Długość: 138 mm
- Powierzchnia: Stal nierdzewna powierzchnia polerowana
- Materiał ramy: Stal nierdzewna 14301
- Blokada: przykręcony
- Klasa obciążenia: K 3 (EN 1253-1)
- Kratka Design: Kessel
- Szerokość ramy: 150 mm
- Długość ramy: 150 mm
- Nasada: regulowany w trzech wymiarach
- Kształt nasady: Kwadratowa
- Materiał nasady: ABS
- Syfon: w zestawie






