Dodaj produkty podając kody
Dodaj plik CSV
Wpisz kody produktów, które chcesz zbiorczo dodać do koszyka (po przecinku, ze spacją lub od nowej linijki).
Powtórzenie wielokrotnie kodu, doda ten towar tyle razy ile razy występuje.
Marka
Kod IK
Symbol
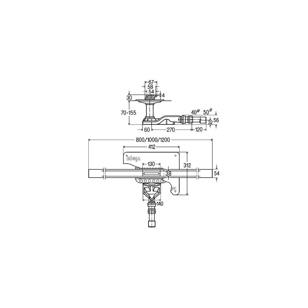
67794514
Seria
Rodzaj towaru
Odwodnienia liniowe
EAN
4015211794514
Kod producenta
794514
Szerokość [mm]
54
Wysokość [mm]
70
Długość [mm]
1200
Z syfonem
1
Model/kształt/forma
Prostokątny
Długość towaru w centymetrach
16
Wysokość towaru w centymetrach
15
Szerokość towaru w centymetrach
125
Strona www producenta
www.viega.pl
Zapytaj o produkt
Napisz swoją opinię








