Dodaj produkty podając kody
Dodaj plik CSV
Wpisz kody produktów, które chcesz zbiorczo dodać do koszyka (po przecinku, ze spacją lub od nowej linijki).
Powtórzenie wielokrotnie kodu, doda ten towar tyle razy ile razy występuje.
Marka
Symbol
29HHV220563602R6K
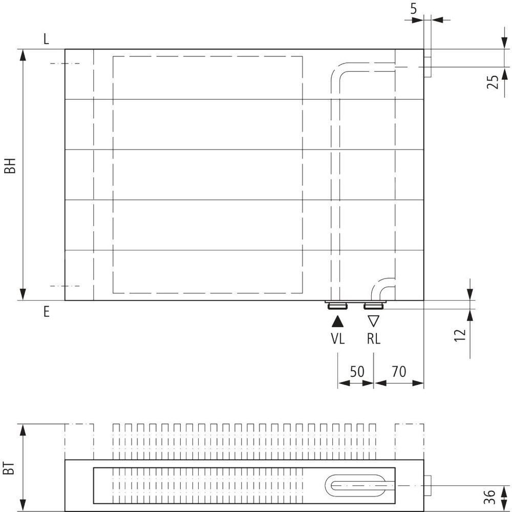
Rodzaj towaru
Grzejniki stalowe płytowe
EAN
4051487187988
Kod producenta
HHV220563602R6K
Strona www producenta
www.kermi.pl
Zapytaj o produkt
Napisz swoją opinię











