Dodaj produkty podając kody
Dodaj plik CSV
Wpisz kody produktów, które chcesz zbiorczo dodać do koszyka (po przecinku, ze spacją lub od nowej linijki).
Powtórzenie wielokrotnie kodu, doda ten towar tyle razy ile razy występuje.
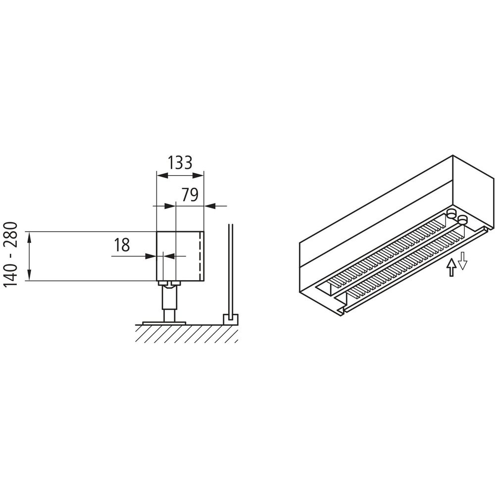
Minimalistyczny konwektor – skuteczny sposób na zredukowanie strat ciepła spowodowanych dużymi przeszkleniami.
Specjalna osłona przeciw wypromieniowaniu ciepła montowana jest na tylnej ścianie konwektora. Uniemożliwia ona promieniowanie ciepłego powietrza w stronę przeszklonej powierzchni i dzięki temu zmniejsza stratę ciepła aż do 80%.
Grzejniki konwektorowe są najbezpieczniejszym urządzeniem grzewczym. Promieniowanie jest relatywnie niskie, a dzięki homogenizacji dwutlenek węgla jest skutecznie usuwany z martwych stref w mieszkaniu.
Marka
Symbol
29KSN33007500211K
Seria
Rodzaj towaru
Grzejniki klimakonwektorowe
EAN
4051487235702
Kod producenta
KSN33007500211K
Długość towaru w centymetrach
510
Wysokość towaru w centymetrach
8.5
Szerokość towaru w centymetrach
21.9
Strona www producenta
www.kermi.pl
Zapytaj o produkt
Napisz swoją opinię













