Dodaj produkty podając kody
Dodaj plik CSV
Wpisz kody produktów, które chcesz zbiorczo dodać do koszyka (po przecinku, ze spacją lub od nowej linijki).
Powtórzenie wielokrotnie kodu, doda ten towar tyle razy ile razy występuje.
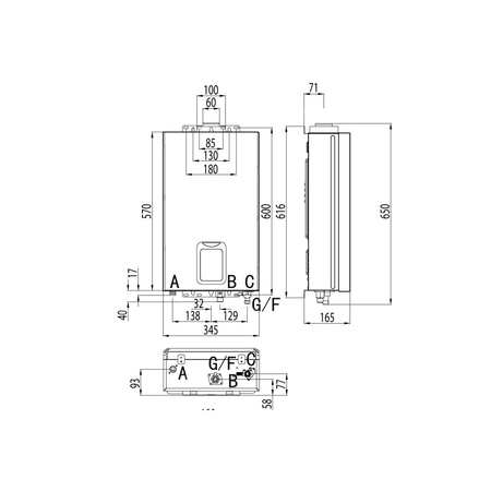
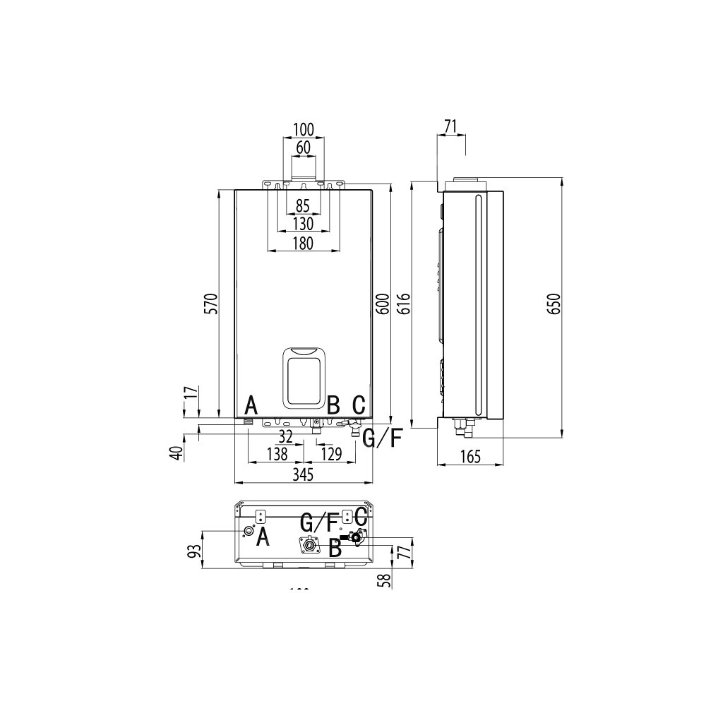
Next Evo X to nowy gazowy przepływowy podgrzewacz wody z zamkniętą komorą spalania, od Ariston, światowego lidera komfortu cieplnego.
Zamknięta komora spalania: pełne bezpieczeństwo użytkowania
Termostat: modulacja temperatury za pomocą czujnika NTC, możliwość osiągnięcia wysokich standardów komfortu i oszczędność energii
Ultra kompaktowy: tylko 16,5 cm głębokości
Elektroniczny zapłon, jonizacyjna kontrola płomienia
Praca przy ciśnieniu wody 0,1 bara
Działa również przy minimalnym przepływie wody: szybkość 2,5 l/min
Może być zintegrowany z systemami solarnymi
Zapytaj o produkt
Napisz swoją opinię






